ავტორი:

ჩინეთი ლონდონში "მეგა-საელჩოს" აშენებს, სადაც "საიდუმლო სარდაფი" აღმოაჩინეს - ბრიტანეთი ახსნას ითხოვს და ეჭვობს, რომ ეს ჯაშუშობისთვის განკუთვნილი ოთახებია

ჩინეთი ლონდონში "მეგა-საელჩოს" აშენებს, სადაც "საიდუმლო სარდაფი" აღმოაჩინეს - ბრიტანეთი ახსნას ითხოვს და ეჭვობს, რომ ეს ჯაშუშობისთვის განკუთვნილი ოთახებია

ბრიტანეთის ერთ-ერთმა მაღალჩინოსანმა, ანჟელა რეინერმა, რომელიც ქვეყანაში საბინაო მშენებლობას აკონტროლებს, ჩინეთს მოსთხოვა განმარტოს თუ თუ რატომ შეასწორა ლონდონში დაგეგმილი „მეგა-საელჩოს“ შენობის ნახაზები.

არსებობს ეჭვი, რომ შესაძლოა შენობის სარდაფი „მიწისქვეშა ჯაშუშურ განყოფილებებად“ გადაკეთდეს.

ანჟელა რეინერი

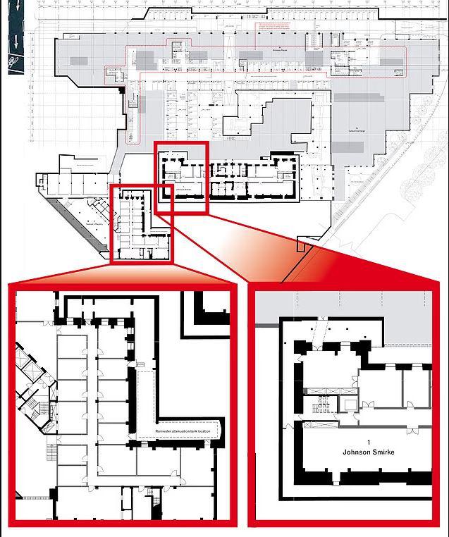
საქმე იმაშია, რომ ჩინეთმა ლონდონში დაგეგმილი საელჩოს მშენებლობის პირველადი გეგმა გადააკეთა და რამდენიმე მიწისქვეშა ოთახი “ნაცრისფერ ხონაში“ მოაქცია.

პირველი ვარიანტის ნახაზის ხელახლა წარსადგენად, სადაც შესწორებები არ არის შეტანილი, რეინერმა პეკინს ორი კვირა მისცა.

თუ ჩინეთი ამას ვერ გააკეთებს, ვიცე-პრემიერმა მას დაავალა, „ზუსტად და დეტალურად განსაზღვროს“, რატომ დაკორექტირდა ნახაზები და ახსნას, თუ რატომ იყო „ნაცრისფერ“ ზონაში მოქცეული სამეფო ზარაფხანის კომპლექსის სარდაფი და სხვა ოთახები.

  • აშენების შემთხვევაში, ახალი საელჩო ლონდონის კოშკის მოპირდაპირედ, ყოფილი სამეფო ზარაფხანის შენობაში განთავსდება და ის ჩინეთის უდიდესი საელჩო იქნება ევროპაში.

კრიტიკოსები შიშობენ, რომ ეს ადგილი ჯაშუშური ოპერაციების გაძლიერების ცენტრად გადაიქცევა.

აშშ-მ უკვე გამოთქვა „ღრმა შეშფოთება“ პროექტის გამო, რადგან ის ლონდონ სიტისთან ახლოს მდებარეობს, სადაც მსოფლიოს უდიდესი ფინანსური ინსტიტუტებია განთავსებული.

დიდი ბრიტანეთის მთავრობამ ეს ადგილი ჩინეთს 255 მილიონ ფუნტ სტერლინგად 2018 წელს მიჰყიდა. საელჩოს აშენების ნებართვის შესახებ საბოლოო გადაწყვეტილება კი სექტემბრის თვეში იქნება მიღებული.

ჩინეთმა უარყო ბრალდებები, რომ საელჩო შეიძლება ჯაშუშობის ცენტრი იყოს.

წყარო

იხილეთ ასევე: